The Global City là Dự án Khu đô thị Sài Gòn Bình An do Tập đoàn Masterise Homes đầu tư tại mặt tiền Đường Song Hành, Phường An Phú, Quận 2, Thành phố Thủ Đức. Dự án The Global City có quy mô 117.4ha được chi làm 2 phân khu gồm: Khu nhà ở diện tích 22ha với 193 căn biệt thự, nhà liên kế sân vườn và 40 Tháp chung cư với 13.200 căn hộ cao cấp, 80 căn penthouse & Khu liên hợp sân golf rộng 92ha gồm khu sân golf 18 lỗ, khu nghĩ dưỡng & khu khách sạn 4000 phòng
Sài Gòn Bình An hay còn gọi là Him Lam Bình An là dự án tổ hợp khu đô thị hiện đại với sân golf theo chuẩn quốc tế. Với địa thế nằm ngay mặt tiền trục cao tốc tại trung tâm thành phố Thủ Đức và đồng thời liền kề với kinh đô thể thao do chủ đầu tư Singapore đầu tư ngay kế bên, Sài Gòn Bình An được kỳ vọng sẽ là mảnh ghép hoàn hảo tạo nên vùng đô thị thể thao hàng đầu hạt nhân kinh tế mới của khu Đông Sài Gòn.

Phối cảnh Dự án Căn hộ The Global City Quận 2 Thủ Đức
TỔNG QUAN DỰ ÁN THE GLOBAL CITY QUẬN 2
| Tên Thương mại dự án: | The Global City |
| Tên dự án: | Sài Gòn Bình An |
| Vị trí: | Mặt tiền Đường Song Hành, Phường An Phú, Quận 2, Thành phố Thủ Đức |
| Chủ đầu tư dự án: | Tập đoàn Masterise Homes |
| Đơn vị tổng thầu xây dựng: | An Phong Cons |
| Đơn vị thiết kế dự án: | Foster and Partner (Anh) |
| Quy mô dự án: | 117.4ha với 2 phân khu: Khu nhà ở & Khu sân Golf |
| Phân khu nhà ở: | Diện tích 22ha gồm: 193 căn biệt thự, nhà liên kế sân vườn và 40 Tháp chung cư với 13200 căn hộ cao cấp, 80 căn penthouse |
| Phân khu sân Golf: | Diện tích 92ha gồm: khu sân golf 18 lỗ, khu nghĩ dưỡng & khu khách sạn 400 phòng |
| Tiện ích nội khu: | – Hồ bơi tràn bờ, hồ cảnh quan – Sân golf 18 lỗ, câu lạc bộ golf – Trung tâm thương mại 6sao chuẩn Quốc Tế – Công viên cây xanh rộng 5000m2 – Khu nhà hàng 5 sao & khách sạn quốc tế |
| Pháp lý dự án: | GPXD số 155/GPXD ngày 18/12/2020 |
| Ngày khởi công dự án: | 18/03/2021 |
| Dự kiến hoàn thành: | 21/12/2025 |
| Hình thức sở hữu: | Người Việt Nam sở hữu lâu dài – Người nước ngoài sở hữu 50 năm |

Dự án Căn hộ The Global City
VỊ TRÍ DỰ ÁN THE GLOBAL CITY QUẬN 2 THỦ ĐỨC
Vị trí Dự án The Global City tọa lạc ngay trên Mặt tiền Đường Song Hành, Phường An Phú, Quận 2, Thành phố Thủ Đức. The Global City – Sài Gòn Bình An sở hữu vị trí ngay trung tâm phường An Phú với địa thế Sài Gòn Bình An đặc biệt đắc địa bởi hai mặt tiền giáp hai trục đường quan trọng bậc nhất khu Đông Sài Gòn. Cụ thể, có một mặt tiền liền kề cao tốc TP.HCM – Long Thành – Dầu Giây, trục đường huyết mạch kết nối giao thông giữa TP.HCM với các tỉnh miền Tây Nam Bộ, Đông Nam Bộ và Tây Nguyên như Biên Hòa, Bình Dương, Dĩ An, Long Thành, Nhơn Trạch.,..

Vị trí Dự án Căn hộ The Global City Quận 2 Thủ Đức
Mặt tiền phía Đông dự án giáp đường Đỗ Xuân Hợp, tuyến đường trục kết nối xuyên suốt thành phố mới Thủ Đức (Quận 9 cũ). Đặc biệt, dự án có một mặt tiền giáp sông Rạch Chiếc và mặt còn lại giáp với khu đô thị thể thao Saigon Sports City (64ha) của chủ đầu tư ngoại Keppel Land (Singapore). Việc nằm kề cận dự án cao cấp SaiGon Sport City khiến vị trí Sài Gòn Bình An được nâng tầm trở thành một khu tổ hợp đô thị thể thao đẳng cấp nhất nhì khu vực.
Ngoài ra, Sài Gòn Bình An còn kề cạnh ngay khu tái định cư 15ha và dễ dàng di chuyển về khu đô thị Thủ Thiêm, quận Bình Thạnh và các quận trung tâm 1,3,4,..qua các tuyến đường Đại lộ Mai Chí Thọ, Xa Lộ Hà Nội, hầm Thủ Thiêm,…
TIỀM NĂNG HẠ TẦNG KHU VỰC THỦ ĐỨC
Giai đoạn từ nay đến 2030, khu Đông Sài Gòn sẽ tiếp tục dẫn dắt thị trường vốn đầu tư vào cơ sở hạ tầng của TP.HCM với quy mô đầu tư lên đến 852.500 tỷ đồng Các dự án trọng điểm được ưu tiên phát triển và đưa vào sử dụng nổi bật có nâng cấp cao tốc TP.HCM – Long Thành – Giầu Dây lên 8 làn xe, mở rộng đường Đỗ Xuân Hợp, Lê Văn Việt, Lã Xuân Oai với bề rộng lên ddến 60m. Đường Nguyễn Duy Trinh cũng được nâng cao, đảm bảo lưu thông khu vực Mai Chí Thọ và Đồng Văn Cống, nâng cấp nút giao An Phú, nút giao Mỹ Thủy, đường Vành Đai 3, xây dựng cầu Cát Lái,.v.v…
Song song đó, thành phố Thủ Đức còn tăng tốc tiến độ thi công các công trình hạ tầng kỹ thuật, chống ngập, thoát nước, bộ máy hành chính, bệnh viện, chống sạt, nạo vét,..để cải thiện chất lượng sống và nâng tầm mỹ quan đô thị.
Bên cạnh đó, tuyến đường sắt đô thị Metro Số 1 Bến Thành – Suối Tiên sắp hoàn thành cũng là một động lực thúc đẩy đáng kể nội lực phát triển kinh tế của vùng.

Vị trí Thực tế Dự án Căn hộ The Global City Quận 2 Thủ Đức
TIỆN ÍCH DỰ ÁN THE GLOBAL CITY THỦ ĐỨC
Tiện ích Nội khu Dự án Căn hộ The Global City Quận 2 Thủ Đức nổi bật trong khu vực với sân golf 18 lỗ chuẩn quốc tế và quy mô bề thế lên đến 92ha. Đây dự kiến sẽ là một trong những sân golf thể thao đẳng cấp nhất TP. Thủ Đức cũng như TP.HCM và là nơi quy tụ những sự kiện, giải đấu chuyên nghiệp tầm cỡ khu vực.
Tích hợp trong nội khu của vùng đô thị hạt nhân là tổ hợp đầy đủ các tiện ích không chỉ phục vụ toàn diện nhu cầu sinh hoạt của cư dân mà còn mở rộng, nâng tầm chất lượng trải nghiệm lên mức du lịch, nghỉ dưỡng.
Theo đó, dự án sở hữu bến du thuyền ngay mặt tiền sông Rạch Chiếc, trung tâm thương mại với hàng trăm thương hiệu mua sắm dịch vụ sang trọng, sầm uất, công viên cảnh quan, hồ bơi, khu vực tập luyện thể thao, GYM, Spa, Yoga, tiệc nướng ngoài trời BBQ,…
Tiện ích ngoại khu The Global City
Nằm tại khu vực trung tâm phường An Phú cũng như thành phố Thủ Đức, trong vòng bán kính 3km The Global City dễ dàng kết nối thuận tiện với chợ Thạnh Mỹ Lợi, chợ Cát Lái, chợ Cây Xoài, bệnh viện Đa Khoa Quận 2, hệ thống trường học công lập các cấp, siêu thị và Đại siêu thị.
Ngoài ra, The Global City Thủ Đức còn hưởng lợi từ tiện ích nội khu hiện đại của các khu đô thị liền kề như Saigon Sport City, Villa Park, khu đô thị Cát Lái (Kiến Á),…

Tiện ích Nội khu Dự án Căn hộ The Global City Quận 2 Thủ Đức
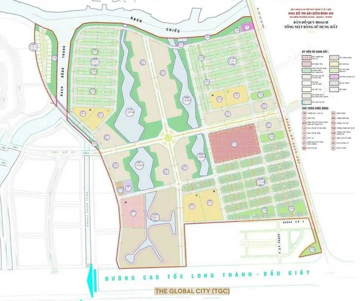
MẶT BẰNG DỰ ÁN THE GLOBAL CITY THỦ ĐỨC
Mặt bằng Dự án Căn hộ The Global City Quận 2 Thủ Đức có quy mô khủng lên đến 117ha. Trong đó, khu nhà ở tích hợp tiện ích thương mại, nghỉ dưỡng rộng 22 ha với các sản phẩm 193 nền biệt thự, nhà liên kề có sân vườn và 2 block chung cư cao cấp với số lượng giới hạn chỉ 132 căn hộ & 8 căn penshouse, tích hợp cùng trung tâm thương mại tại khối đế.
Phần khu liên hợp sân Golf có quy mô 92ha bao gồm các công trình gồm CLB Golf, sân Golf 18 lỗ, khách sạn 400 phòng, khu nghỉ dưỡng spa…phục vụ với chất lượng chuẩn Quốc tế.

Mặt bằng Dự án Căn hộ The Global City Quận 2 Thủ Đức
5 lý do lựa chọn dự án The Global City
- Vị trí đắc địa trung tâm thành phố Thủ Đức, mặt tiền cao tốc tỷ đô của TP.HCM.
- Sở hữu một mặt tiền giáp sông và một mặt tiền đường trục Đỗ Xuân Hợp, thuận tiện nhiều loại hình giao thông và di chuyển.
- Nằm liền kề Saigon Sport City, dự án khu đô thị thể thao đẳng cấp của chủ đầu tư ngoại Singapore.
- Sở hữu sân golf rộng gần 100ha chuẩn quốc tế, hệ thống tiện ích du lịch nghỉ dưỡng đẳng cấp, giàu tiềm năng cho thuê, kinh doanh, đầu tư.
- Chủ đầu tư uy tín, giàu kinh nghiệm, tiềm lực tài chính vững mạnh. Dự án đã có pháp lý rõ ràng, minh bạch.
NHÀ ĐIỀU HÀNH DỰ ÁN THE GLOBAL CITY

TIẾN ĐỘ THI CÔNG DỰ ÁN THE GLOBAL CITY THỦ ĐỨC

Hình ảnh Thực tế Tiến độ thi công Dự án The Global City


GIÁ & PTTT DỰ ÁN THE GLOBAL CITY
- Giá bán Nhà phố The Global City:
- Giá bán Biệt thự The Global City:
- Giá bán Căn hộ The Global City:

