Dự án Đất nền Lic City Phú Mỹ Bà Rịa – Vũng Tàu tọa lạc gần trung tâm Phú Mỹ khoảng 2 km, cách trạm thu phí QL51 T3 khoảng 200m. Từ quốc lộ 51 đi vào sâu dự án chỉ khoảng 100m, với cung đường rộng hơn 20,5m nối dài giữa quốc lộ 51 và quốc lộ 56. Đây là hai con đường lớn huyết mạch quan trọng nhất của Bà Rịa – Vũng Tàu. Phú Mỹ hiện đang từng bước phát triển bản thân để trở thành “thành phố cảng” lớn nhất Việt Nam.
Trên lộ trình phát triển một Thành phố Cảng xầm uất nhất Miền Nam, Phú Mỹ đang dần trở thành một mũi nhọn trong việc phát triển và đẩy mạnh ngành công nghiệp đường thuỷ cũng như logictic của Việt Nam nói chung và Miền Nam nói riêng, từ đó kéo theo một hệ thống khu công nghiệp phục vụ Thành phố Cảng Biển này, tăng trưởng dân số nhanh tróng, nguồn lao động đổ dồn về khu vực, số lượng chuyên gia trong và ngoài nước tăng cao, đồng thời tạo nên một mặt bằng giá mới cho chính Bất Động Sản Phú Mỹ.
Phối cảnh Dự án đất nền Lic City Phú Mỹ Bà Rịa Vũng Tàu
Đây không còn là điều không thể khi Phú Mỹ đang dần hoàn thiện hạ tầng xung quanh, cũng là nơi có nhiều khu công nghiệp lớn nhỏ với lương công nhân lao đông hơn 10.000 người. Ngoài ra, Phú Mỹ còn đang nắm giữ hệ thống cảng nước sâu lớn nhất Việt Nam ( Cái Mép – Thị Vải ) với hơn 35 cụm cảng lớn nhỏ, có container đi thẳng qua các nước lớn mà không cần qua bất kỳ một tram trung chuyển nào khác. Không những thế , cum cảng Cái Mép – Thị Vải còn nằm trong top 19 cảng biển lớn nhất thế giới và nằm trong top 6 cảng có tốc độ tăng trưởng cao nhất thế giới.
>> Tham khảo thêm thông tin Dự án LakeSide Phú Mỹ: Dự án đất nền Phú Mỹ tọa lạc ngay trung tâm của ấp 1, phường Hắc Dịch, thị xã Phú Mỹ, tỉnh Bà Rịa – Vũng Tàu. Tổng diện tích dự án lên tới 3 ha, với 260 căn nhà phố, Diện tích từ 132,5m2 – 175m2
>> Với hàng loạt dự án lớn sắp đổ bộ vào Thị trường Đất nền Bà Rịa – Vũng Tàu của các tập đoàn lớn như: dự án FLC núi dinh với đề xuất đầu tư 3 hạng mục lớn ( tổ hợp du lịch nghỉ dương tâm linh núi Dinh, vườn thú hoang dã safari, khu đô thị Tây Nam) với tổng diện tích hơn 1.680 hecta đáp ứng nhu cầu sinh sống khoảng hơn 100.000 người; Novaword Hồ Tràm với tổng diện tích quy hoạch lên tới 1.000 hecta được đầu tư quy hoạch bài bản với tổng chi phí hơn 1 tỷ USD.
Dự án đất nền Lic City Phú Mỹ Bà Rịa Vũng Tàu
THÔNG TIN DỰ ÁN ĐẤT NỀN LIC CITY
- Tên dự án : Lic City
- Chủ đầu tư: Công ty CP Đầu Tư và Phát Triển Dự Án Bà Rịa – Vũng Tàu (BIDC)
- Hợp tác đầu tư: Công ty Cổ Phần Phát Triển Nhà An Phúc Điền (APD)
- Phân phối độc quyền: Công ty Cổ Phần Phát Triển Nhà An Phúc Điền (APD)
- Loại hình phát triển : Nhà phố liền kề, Shophoue thương mại, Home resort.
- Vị trí : Tiếp giáp mặt tiền Quốc lộ 51
- Tổng diện tích quy hoạch : 7,2 ha +1000m2 quy hoạch hồ sinh thái
- Mật độ xây dựng : 60%
- Diện tích đa dạng : 100m2, 120m2, 200m2
- Quy cách xây dựng: Xây theo mẫu: 2 lầu, lùi trước 2.5m, lùi sau 1.5m, riêng khu Shophouse không lùi trước.
- Thời gian xây nhà: Không giới hạn thời gian xây nhà và GPXD đo CĐT thực hiện.
- Diện tích cây xanh, cảnh quan: Công viên cây xanh và hồ cảnh quan: 4.296m2 (hồ: 2.620m2, ngang 11-23m * dài 153m ). Trường học: 6.676m2
- Pháp lý : Dự án này được đầu tư bằng vốn Ngân sách Nhà nước, đã được phê duyệt QHCT 1/500 và đã có thông báo thu hồi đất (đã thể hiện ranh thu hồi trên GCN QSD đất). Dự án này thuộc danh mục các dự án TĐC đã được UBND Tỉnh phê duyệt năm 2015 theo Quyết định số 20/2015/QĐ-UBND ngày 13/4/2015. HĐND tỉnh BRVT đã có Nghị quyết số 40/2017/NQ-HĐND về việc bố trí vốn để khởi công dự án này. Các công tác chuẩn bị đã xong, dự kiến khởi công trong giai đoạn 2020-2022
- Giá dự kiến : 8,5 Triệu/ m2
Phối cảnh đêm KDC Lic City Vũng Tàu
VỊ TRÍ ĐỘC TÔN CỦA KHU DÂN CƯ LIC CITY PHÚ MỸ
Vị trí Lic City nối liền 2 tuyến đường huyết mạch Bà Rịa Vũng Tàu là quốc lộ 51 và quốc lộ 56. Cách QL51 200m. Vi trí dự án được các chuyên gia đánh giá cao khi nằm ngay nút giao giữa quốc lộ 51 và quốc lộ 56 thuận tiện di chuyển tiếp cận các khu vực lân cận cũng như là điểm giao thoa giữa hai quốc lộ lơn nhất nhì đông nam bộ.
Vị trí Dự án Lic City Bà Rịa
Đường dự phóng: Con đường hiện hữu 20.5m trước dự án thuộc Dự án hạ tầng kỹ thuật KDC Tân Hòa – Tân Hải. Dự án này được đầu tư bằng vốn Ngân sách Nhà nước, đã được phê duyệt QHCT 1/500 và đã có thông báo thu hồi đất (đã thể hiện ranh thu hồi trên GCN QSD đất). Dự án này thuộc danh mục các dự án TĐC đã được UBND Tỉnh phê duyệt năm 2015 theo Quyết định số 20/2015/QĐ-UBND ngày 13/4/2015. HĐND tỉnh BRVT đã có Nghị quyết số 40/2017/NQ-HĐND về việc bố trí vốn để khởi công dự án này. Các công tác chuẩn bị đã xong, dự kiến khởi công trong giai đoạn 2020-2022
Từ đây có thể kết nối qua :
- Cao tốc long thành dầu giây – 10 phút
- Sân bay quốc tế long thành – 20 phút
- Thành phố vũng tàu – 20 phút
- Chợ hắc dịch – 5 phút
- Cụm công nghiệp mỹ xuân – 10 phút
- Trung tâm thị xã phú mỹ hay trung tâm thương mại KCN phú mỹ – 13 phút
- Coopmart , bệnh viện , UBND phú mỹ ,… – 10 phút
Toàn cảnh Dự án Lic City
Hạ tầng là điểm nhấn quan trọng của Phú Mỹ hiện tại.
- Theo các chuyên gia bất động sản đánh giá , khu vực đông nam bộ hiện đang từng bước phát triển lên khi tất cả các ông lớn trong ngành bất động sản đang từng bước thu mua mạnh các khu đất trọng điểm phát triển từ lòng thành kèo về tới Bà Rịa để từng bước từng bước một phát triển các dự án dã được ấp ủ bấy lâu bới vì trên dọc tuyến đường 51 là những cụm công nghiệp và các cảng biển lớn đáp ứng được nhu cầu ở cũng như tiện đi lại làm việc.
- Là nơi thuộc vùng tư giác trọng điểm phía nam qua tuyến cao tốc long thành – dầu giây cùng với quốc lộ 51 hiện đang mở rộng làn xe . Ngoài ra tuyến cao tốc bến lức – long thành hiện đang được đi vào sử dụng sẽ là một điểm nhấn mạnh khi kết nối được toàn khu vực Miền tây – Đồng nai – Lòng thành – Bà rịa Vũng tàu.
- HIện nay nhà nước đang chủ trương quy hoạch tổng thể khi đưa vào tuyến cao tốc biên hòa vũng tàu , đường sắt kết nối từ sài gòn xuống vũng tàu hay khu sân bay chuyên dụng lộc an hay cum cảng chuyên dụng long sơn đang từng bước phát triển và đi vào hoạt động thúc đẩy được sự phát triển kinh tế mạnh mẽ
- Vũng tàu đã được chính phủ phê duyệt để trở thành trung tâm về dầu khí , cảng biển cảng quốc tế hàng đàu khu đông nam bộ. Ngoài ra bà rịa đang hương tới thành phố đô thị loại 1 trong năm 2020 . Việc này sẽ thúc đẩy mạnh bất động sản trong khu vực này.
TIỆN ÍCH DỰ ÁN ĐẤT NỀN LIC CITY PHÚ MỸ
Là một dự án tại thị xã Phú Mỹ nói riêng và khu vực Bà Rịa Vũng Tàu nói chung thì Dự Án.Lic City có gì khác biệt mà bạn phải quan tâm và nên lựa chọn.
Ngoại khu dự án Lic City
Nằm giữa khu vực phát triển sầm uất và gần đây được chú ý bởi Phú Mỹ được lên Thị xã Phú Mỹ năm 2018 và chủ trương lên thành thành phố năm 2025.
Nói về vị trí thì dự án Lic City có phần đặc biệt và thuận lợi hơn so với các dự án khu vực này khi:
- Chợ Hắc Dịch ( 5 phút )
- Trung tâm thị xã Phú Mỹ (12 phút)
- Cách UBND Phú Mỹ, Bưu điện Phú Mỹ, Coopmart Phú mỹ 12 phút
- Trung tâm y tế Phú Mỹ ( 15 phút)
- Cụm KCN Mỹ Xuân, KCN Phú Mỹ (15 phút)
- Cảng Cái Mép , Cảng Thị Vải ( 20 phút)
- Sân Bay Long Thành (30 phút)
- Thành phố Vũng Tàu ( 30 phút)
Nội khu dự án Đô thị Lic City
Dự án Lic City là đứa con yêu của Công ty Phát Triển nhà Bà Rịa Vũng Tàu nên được đầu tư và thiết kế bài bảng từ cho sự phát triển tương lai:
- Con đường đi bộ 3D trong du án sẻ là điểm nhấn cho cư dân trong tương lai cũng như nâng tầm phát triển trí tuệ và tưởng tượng của thế hệ tương lai. Làm thỏa sức tò mò cả trẻ nhỏ.
Điểm Countdown mới của Phú Mỹ
- Vĩ hè 3m, cây xanh, công viên, hồ sinh thái 1000m là những mãn xanh giúp cho cư dân tận hưởng không khí trong lành cũng như nghĩ dưỡng sau một ngày làm việc hay hợp mặt với cuối tuần.
- Khu mua sấm uất phục vụ nhu cầu mua bán và cung cấp dịch vụ đảng cấp nơi dây
- Bênh cạnh đó thì vấn đề an ninh cũng được chú trọng bảo vệ cũng như camera an ninh 24/24, điện âm, nước máy, phòng cháy chửa cháy,…
- Phong Thủy: Nói về khu dân cư đẳng cấp thì vấn đề phong thủy cũng nên tì hiểu thêm. Thì nơi đây là một khu dân cư có phong thủy cực tốt có thể nói là phong thủy tối ưu
- Mặt trước là đường rộng sẻ đem lại “sinh khí”một sự thịnh vượng phát triển cho cư dân.
- Mặt sau giáp núi Dinh có bề dầy lịch sử sẻ đem lại sự che chở vũng chắc
- Giữ khu dân cư có hồ sinh tháy rộng 1000m2 đem lại sự hài hoàn, hòa thuận cho khu dân cư Lic City (nói về hoa học thì điều hòa không khí cho toan khu dân cư, là cho nhưng cu dân sóng trong khu dân cư có cảm giác thỏi máy vui vẻ và hòa nhã,..)
Không gian sống như resort của Phú Mỹ
Thông Tin: Niếu đã đầu tư đất cũng như quan tam đất khu vực này thì nên một lần đấn nơi đây để tham quan và cảm nhận cũng như quyết định
Hãy liên hệ chúng tôi những chiên viên tư vấn để tìm cho mình vị trí tốt nhất cho dự án này.
=> Điều cần làm:
– Việc của bạn là liên hệ ngay với chúng tôi
– Chúng tôi những chuyên viên tư vấn cho bạn phương án và quyết định đúng đắng nhanh nhất.
VÌ SAO CÁC NHÀ ĐẦU TƯ CHỌN DỰ ÁN LIC CITY PHÚ MỸ LÀM NƠI SINH TÀI LỘC
Vị Trí Chiến Lược: Lic City sở hữu vị trí ngay mặt tiền đường 20,5m, cách Quốc lộ 51 chỉ 100m thuận lợi duy chuyển:
- Cách cảng Cái Mép chỉ 15 phút đi xe máy, cách núi Dinh 4Km, cách Suối Đá khoan 5 phút.
- Phía trước là đường quốc lộ 51 đường trọng đểm, phía sau là đường quốc lộ 56 đang đi vào hoàn thiện
- Các đường giao thông được kết nối gắn liền với quốc lộ 51 đang được chủ trương phát triển, đường sông hành quốc lộ 51, đường nói cảng Cái Mép và quốc lộ 51 rút ngắn khoản cách từ cảng Cái Mép đến QL 51 còn 7km
- Đường cao tốc Long Thành- BÀ Rịa rút ngắn khoàn cách từ Vũng Tàu đi về sân bay Long Thành lớn nhất cà nước đang triển khai
- Dự Án cách siêu thị coop chỉ 10 phút, cách trường mẫu giáo, cấp 1, 2, 3 chỉ với 5 phút.
- Dự án ngay vị trí cực kỳ phong thủy cho sự phong thủy và sung túc: Trước giáp đường lớn biểu hiện sự sinh khí sung túc cho khu dân cư, Phía sau tựa núi (gặp thời được che chở) sự ấm no yên ổn. Ở giữa khu dân cư có hồ sinh thái tự nhiện được đầu tư làm hồ sinh thái để điều hòa không khí cho khu vục dự án hơn 414 hộ cư dân.
Ngoài ra khu dân cư được quy hoạch theo chuẩn xây dựng cho từng lô với diện tích chuẩn 5 x 16; 5 x 18; 5 x 20,…6 x 20,… cho khách hàng có nhiều sự lựa chọn nhưng vẫn có thể xây dựng theo chuẩn xây dựng. Đường được quy hoạch 16m, 20,5m với 2 bên vỉa hè 6m và hành lang cây xanh trải khắp dự án.
Ngoài ra còn có công viên, khu vui choi trẻ em, đường đi bộ để thỏa sức tưởng tượng của trẻ nhỏ
Chính vì thế nên có thể nói dự án có một vị trí chiến lược không chỉ tiện ích xum quanh mà ngay cả trên bảng quy hoạch cung được chăm chúc với từng mm mét, khu vục không đày 15 phút phát triển mạnh mẽ với cơ sở hạ tầng đang được đầu tư mở rộng và đầu tư mới với các tuyến đường trọng điểm,.. Hứa hẹn một khu vực phát triển trong thời gian ngắn.
Quy hoạch bài bản và phát triển đồng bộ tại Lic City Phú Mỹ
Phú Mỹ Vùng Trọng Điểm Kinh Tế
- Phú Mỹ được lên thị xã Phú Mỹ vào năm 2018 và chủ trương lên TP Phú Mỹ năm 2025 và phát triển thành TP công nghiệp và Cảng
- Nhờ sở hữu cảng biển nước sâu Cái Mép lớn nhất nước và trong 19 cảng biển lớn nhất Khu vực Đông Nam á chỉ hoạt động 50% công suất và chủ trương hoạt động hết 100% công suất trong thời gian sớm nhất.
- Cảng Cái Mép sẻ đưa nơi đây là một thành phố càng lớn nhất khu vực Đông Nam Á đầy mạnh phát triển kinh tế vùng và khu vực đông dương. Sẻ kéo theo lượng lao động trí thức và nhiều dịch vụ vui chơi, giải trí, ẩm thực,…
- Ngoài ra Phú Mỹ là Thị xã tập trung hơn 10 khu công ngiệp và nhiều tạp đoàn lớn về đây để sản suất và kinh doanh mua bán
Từ đó nền kinh tế của Phú Mỹ đang được chủ trương phát triển và thay đổi từng ngày nhờ chính sách ưu đãi của nhà nước và lợi thế về cảng biển cung như khu công nghiệp tập trung nhiều nhất khu vực, hạ tầng phát triển và mở rộng để phục vụ cho vấn đề giao thông
Hình ảnh kiến trúc – Home Resort
Lic City Sẻ Là Trọng Điểm Phát Triển
- Lic City sẻ là trọng điểm của sự phát triển là khu dân cư đáng sống nhất khu vực nhờ tiêu chí:
- Khu dân cư có đầy đủ tiện ích cho cư dân sống trong khu dân cư Lic City
- Đảm bảo sức khỏe: cách Quốc Lộ 51 chỉ 100m vừa là khoản cách tránh ồn ào từ đường tải trọng nặng, đường vào dự án 20,5 m rộng rãi thông thoán thuận lợi duy chuyển, đường khu dân cư 20,5m và 16m có vĩ hè cây xanh
- Không khí Trong lành: Hồ sinh tháy 1000 m đều hòa nhiệt độ tại khu dân cư, công viên, cây xang trãi khắp dự án
- Khu shophouse đầy đủ tiện nghi phục vụ cư dân tại chổ và khu vực xum quanh, khu Resort cho khách co nhu cầu ở và kinh doanh.
- Là điểm chia giữa Cảng Cái Mép, cac khu công nghiệp với khu vui chơi, giải trí như Suối đá, Khu nghĩ dưỡng của FLC dang triển khai, gần khu ăn chơi, mua sấm, ẩm thực.
Dự án Lic City là sự chọn thích hợp cho khách hàng đầu tư sinh lợi cũng như ở, nghĩ dưỡng, buôn bán kinh doanh
Loại hình sản phẩm Dự án đất nền Lic City Phú Mỹ Bà Rịa Vũng Tàu
Đầu Tư Sinh Lời Cao
- Đầu tư sinh lời nhờ vào cơ sở hạ tầng đang đi vào hoàn thiện giá bất động sản tăng 20%, cơ sở hạ tầng khu vực xum quanh đang tiến hành và triển khai, giá đất tăng.
- Khu đất tái định cư dân cư đang phía sao hiện hữu xum quanh khu dân cư làm nổi bật nơi đây giá lại tăng.
- Khu phức hợp được đầu tư đạc chuẩn từng diện tích tới đường, chăm lo đến từng thế hệ gia đình duy nhất khu vực giá đất tăng.
- Phú Mỹ lên Thành Phố Phú Mỹ giá tăng
- Cảng Cái Mép hoạt động 100% côn suất, Khu công nghiệp,… Thu hút nhiều công nhiên viên, chuyên giá kéo theo các dịch vụ vui chơi , giải trí, ẩm thực,… Giá tăng mạnh
- Đều đặc biệt là sự đầu tư cùa các ông lớn trong thị trường bất động sảng đang đổ về đây đầu tư
- Giá rẻ nhất khu vực chỉ 8,5 triệu/m2 được quy hoạch 40% đất làm đường, cây xanh, công viên, hồ sinh thái
- Đường trãi nhựa 20,5m và 16m. điện âm, nước máy xuyên suốt dự án, đường đi bộ 3D.
- Dự án mặt tiền đường 20,5m, quy hoạch 40% tiện ích, đường,.. chuẩn mà giá chỉ 8,5 triệu/m2 khu vục xum quanh là 10 đến 12 triệu.
Pháp Lý An Toàn.
- Dự án đã có bảng 1/500 và sự cam kết từ chủ đầu tư sổ hồng từng nền trong 6 tháng.
- Sổ hồng từng nền, xây đồng bộ , điện nước hoàn thiện
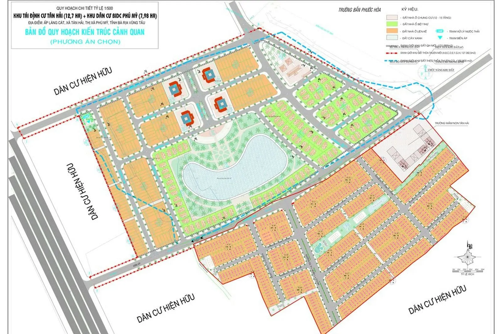
MẶT BẰNG DỰ ÁN LIC CITY

Mặt bằng Dự án Lic City Phú Mỹ, Bà Rịa – Vũng Tàu
Mặt bằng Dự án Lic City Phú Mỹ
Kiến trúc Shophouse Lic City
VỚI 3 LÝ DO VÀNG CHỌN LIC CITY BÀ RỊA
Sân bay Long Thành đang triển khai: Trong thời gian sắp tới thị trường phú mỹ sẽ sốt lên nhờ cảng hàng không quốc tế long thành đang chuẩn bị khởi công xây dựng . Phú mỹ không chỉ phát triển chỉ vì sân bay long thành mà còn do hệ thống đường xã tại đây cực kỳ phát triển và thuận lợi, điển hình là vành đai 3 và vành đại 4 là hai vành đai lớn nhất là cũng là hai vành đai đang ưu tiên phát triển nhất cũng đang dần dần hình thành trong tương lai.
Không những vậy các tuyến cao tốc lớn như : TP HCM – Long Thành – Dầu giây, Dầu giây – Phan Thiết , Bến Lức – Long Thành , Dầu giây – Đà lạt , Biên Hòa – Vũng Tàu đều trải qua địa phận tỉnh Đồng Nai.
Phối cảnh Siêu sân bay Long Thành trong tương lai
Thành phố Cảng tương lai
- Lic City chỉ cách cảng thị vải – Cái mép 7km . Đây là cụm cảng lớn nhất Đông Nam Bộ với 15 bến cảng và hiện đang đứng top 19 thế giới.
- Là cum cảng lớn nhất việt nam nên có rất nhiều nhà đầu tư nước ngoài muốn đầu tư mạnh cho khu vực xung quanh. Dự kiến đến năm 2025 Phú mỹ sẽ phát triển thành khu đô thị kiểu mới mời hang loạt cụm cản mới ra đời
- Ngoài ra hiện nay tại xã Long Sơn hiện đang phát triển khu tổ hợp hóa dầu miền nam và cảng chuyển dụng với tổng diện tích gần 500 ha và hiện đang trong quá trình triển khai
Cảng biển tại Phú Mỹ
Hạ tang hiện đang phát triển mạnh mẽ: Xác định được kinh tế sẽ phát triển mạnh. Phú mỹ đã và đang liên tục phát triển hạ tầng khi từng bước làm rông các cũng đường lớn , các dự án quy mô lớn cũng đã được nhà nước duyệt quyết định 1/500 và đang trong quá trình triển khai.Các tập đoàn lớn cũng đang từng bước lấn sân dô thị trường đất quanh khu đông nam bộ.
Hạ tầng BĐS Phú Mỹ
HÌNH ẢNH TIẾN ĐỘ THỰC TẾ DỰ ÁN LIC CITY PHÚ MỸ
Hướng đi Quốc lộ 56 từ Lịc City Phú Mỹ
Hình ảnh thực tế mặt tiền dự án Lic City Phú Mỹ
Đường phố đi bộ 3D đang thi công tại Lic City
Hình ảnh tại Lic City Phú Mỹ
Tiến độ làm cảnh quan cây xanh tại Lic City
CÁC DỰ ÁN KHU VỰC LIC CITY PHÚ MỸ
| TÊN DỰ ÁN | VỊ TRÍ | CHỦ ĐẦU TƯ | QUY MÔ (ha) | TỔNG SỐ LÔ/CĂN | THỜI ĐIỂM MỞ BÁN | GIÁ BÁN/m2 (Tr.đ) |
| LIC CITY | Đường nối QL51, Thị xã Phú Mỹ | BIDCO | 7.2 | 410 | Rumor | 11 (Dự kiến) |
| HARBOR CENTER | Đường nối QL51, Thị xã Phú Mỹ | ĐTXH PTHT Phú Mỹ | 4.6 | 269 | 2019 | 15-20 |
| GOLDEN GATE 56 | Mặt tiền Lê Đại Hành (40m), P.Kim Dinh, TP.Bà Rịa | Đất Xanh | 7.5 | 480 | 2019 | 12-15 |
| BARIA CITY GATE | QL51, P.Kim Dinh, TP.Bà Rịa | Hưng Thịnh | 14 | 475 | 2019 | 15-20 |
| ECOTOWN PHÚ MỸ | MT Trường Chinh, TX Phú Mỹ | Hoodeco | 6.3 | 319 | 2019 | 15-25 |
| GOLD CITY | Tiếp giáp QL51, TX Phú Mỹ | Đất Xanh | 20.55 | 696 | 2019 | 12-15 |
GIÁ & PHƯƠNG THỨC THANH TOÁN LIC CITY
GIÁ BÁN: 11 TRIỆU/M2
- Ký phiếu chuyển cọc trong ngày mở bán
- Ký HĐ và thanh toán theo tiến độ theo PTTT.
- TT đến 95% bàn giao nền cho khách.
- Trong vòng 24 tháng kể từ ngày bàn giao khách phải xây móng
- Sau khi xây móng sẽ chuyển sang ký HĐMB với khách hàng, khách nào xây móng trước
sẽ ký HĐMB trước nhưng không quá 24 tháng. - Ngay lúc bàn giao nền khách có thể xây nhà nếu có nhu cầu, sau khi xây nhà hoàn công
6 tháng có sổ mang tên khách, nếu không xây nhà thì trong 24 tháng phải xây móng.






















