Khu đô thị Sài Gòn Bình An chính thức được khởi công vào ngày 18/3 vừa qua tại phường An Phú, TP Thủ Đức, TP HCM. Quy mô diện tích dự án rộng 117,4 ha, được chia làm 2 khu vực phát triển bao gồm khu nhà ở với diện tích 22ha cung ứng 193 nền biệt thự, nhà liên kế sân vườn, 2 block chung cư cao cấp với 132 căn hộ và 8 căn penhouse; khu Khu liên hợp sân Golf với hơn 92 ha xây dựng các công trình gồm: CLB Golf, sân Golf 18 lỗ, khách sạn 400 phòng, khu nghỉ dưỡng spa…Dự án Sài Gòn Bình An do SDI Corp làm chủ đầu tư, An Phong Construction và Tường Việt là nhà thầu thi công dự án.
Phối cảnh Khu đô thị Sài Gòn Bình An Quận 2
Theo thông tin trước đó, Khu đô thị Sài Gòn Bình An quận 2 được UBND thành phố chấp thuận chủ trương đầu tư cho Công ty TNHH Thương mại Xây dựng Sản xuất Thiên Hải cùng các công ty liên doanh khác để thực hiện dự án trên khu đất 120 ha vào tháng 1/1999. Sau đó, dự án được các cơ quan chấp thuận thêm phần tiện ích sân golf An Phú dẫn đến phần diện tích dự án tăng lên 137 ha vào năm 2000. Lúc này dự án có tên thương mại là Saigon Golf Country Club and Residences hay Khu liên hợp sân Golf – Thể dục thể thao và nhà ở. Sau nhiều lần điều chỉnh quy hoạch, tổng diện tích dự án chỉ còn lại 117 ha theo Quyết định số 6296/QĐ-UBND về phê duyệt quy hoạch chi tiết 1/500 ngày 30/11/2015. Đến nay sau hơn 20 năm, Khu đô thị Sài Gòn An Bình mới chính thức được triển khai. Sau khi hoàn thành hứa hẹn mang đến một diện mạo đô thị hiện đại, khang trang, thúc đẩy tăng trưởng kinh tế xã hội vượt bậc, cung ứng đa dạng không gian sống giá trị và các dịch vụ thương mại, vui chơi giải trí cho cư dân Sài Gòn.
Lễ khởi công Dự án Khu đô thị Sài Gòn Bình An Quận 2
TỔNG QUAN DỰ ÁN KHU ĐÔ THỊ SÀI GÒN BÌNH AN
- Tên dự án: Khu đô thị Sài Gòn Bình An
- Vị trí: Đường Đỗ Xuân Hợp, phường An Phú, TP THủ Đức, TP HCM
- Chủ đầu tư: Công ty Cổ phần Đầu tư và Phát triển Sài Gòn (SDI Corp)
- Đơn vị tư vấn thiết kế: Công ty TNHH Đầu Tư VTCO
- Đơn vị tư vấn quản lý dự án: Công ty CP Kiểm Định Xây Dựng Sài Gòn
- Đơn vị tổng thầu xây dựng: Công ty TNHH TM & SX Tường Việt
- Đơn vị thi công: Công ty CP Xây Dựng An Phong – An Phong Construction
- Quy mô diện tích: 117,4 ha, trong đó chia làm 2 khu vực
- Khu nhà ở: 22 ha với 193 nền biệt thự, nhà liên kế sân vườn và 2 block chung cư cao cấp với 132 căn hộ & 8 căn penshouse
- Khu liên hợp sân Golf: 92 ha xây dựng các công trình gồm CLB Golf, sân Golf 18 lỗ, khách sạn 400 phòng, khu nghỉ dưỡng spa…
- Tiện ích nội khu: Trung tâm thương mại, hồ bơi, siêu thị, phòng gym, hồ cảnh quan, bến du thuyền, công viên, vườn nướng BBQ,…
- Pháp lý dự án: Theo GPXD số 155/GPXD ngày 18/12/2020
- Thời gian khởi công dự án: Khởi công 18/03/2021
- Thời gian dự kiến hoàn thành: 21/12/2025
VỊ TRÍ DỰ ÁN KHU ĐÔ THỊ SÀI GÒN BÌNH AN
Vị trí Khu đô thị Sài Gòn Bình An tọa lạc tại phường An Phú, TP Thủ Đức, tiếp giáp về phía Đông là đường Đỗ Xuân Hợp, phía Tây giáp dự án Sài Gòn Sports City, tiếp giáp về phía Nam là cao tốc Thành phố Hồ Chí Minh – Long Thành – Dầu Giây và khu tái định cư 15 ha, phía Bắc giáp sông Rạch Chiếc. Vị trí của Dự án Khu đô thị Sài Gòn Bình An Quận 2 được các chuyên gia, nhà đầu tư đánh giá cao bởi lợi thế cận giang, cận thị và cận lộ. Không chỉ lợi thế về giao thông kết nối, môi trường sống gần sông mang đến vượng khí, tài lộc hanh thông cho gia chủ, hơn nữa các dự án gần sông dễ mua bán, chuyển nhượng, tính thanh khoản cực tốt được nhiều khách hàng ưa chuộng.
Vị trí Dự án Khu đô thị Sài Gòn Bình An Quận 2
Giá trị kết nối hoàn hảo từ Khu đô thị Sài Gòn Bình An quận 2 tới hệ thống tiện ích ngoại khu hiện hữu như sau:
- Trong vòng bán kính từ 1 – 3 km kết nối dễ dàng tới hệ thống các trường công lập, chợ Thạnh Mỹ Lợi, chợ Cát Lái, chợ Cây Xoài, bệnh viện đa khoa quận 2, trường quốc tế Sài Gòn Star
- 3km là tới siêu thị Vinatex, cầu Phú Mỹ, nhà thờ Phú Hữu
- 4km là đến trường quốc tế ACG
- 5,5km là đến chùa Huê Nghiêm
- 6km là tới siêu thị Metro, Big C, TTTM Parkson
- 7km là di chuyển đến cầu Sài Gòn để tới trung tâm quận Bình Thạnh, khu đô thị Vinhomes Central Park
- 8km là tới hầm Thủ Thiêm kết nối Đại lộ Võ Văn Kiệt di chuyển về quận 1, quận 5, quận 6…
- 9km là tới Cresen Mall, khu đô thị Phú Mỹ Hưng quận 7
- 14km là khoảng cách đến sân Golf Thủ Đức…
Vị trí Quy hoạch Dự án Khu đô thị Sài Gòn Bình An Quận 2
Ngoài ra, từ đất nền khu đô thị Sài Gòn Bình An quận 2, cư dân dễ dàng tiếp cận nhiều tuyến đường giao thông huyết mạch hướng về trung tâm thành phố như đường Đỗ Xuân Hợp, Song Hành, Liên Phường, Võ Chí Công, Xa lộ Hà Nội, Đại lộ Mai Chí Thọ, hầm Thủ Thiêm…Hơn nữa, các tuyến đường này còng tăng năng lực vận tải hàng hóa giữa cảng Cát Lái lên cao tốc TP HCM – Long Thành – Dầu Giây với Khu công nghệ cao. Đặc biệt, nơi dự án tọa lạc hưởng lợi rất lớn từ công trình hạ tầng nổi bật của khu Đông Sài Gòn như: Nút giao thông An Phú, đây chính là điểm đầu đường cao tốc TP HCM – Long Thành – Dầu Giây và là điểm cuối đường trọng điểm đường Lương Định Của. Khi đi vào hoạt động, không chỉ giúp giao thông thông thoáng mà còn đẩy giá trị của các dự án bất động sản của khu vực, trong đó có khu đô thị Sài Gòn Bình An.
Có thể thấy rằng, với những ưu điểm nổi bật về vị trí nêu trên, có thể thấy sức hút của dự án Sài Gòn Bình An quận 2 trên thị trường là rất lớn. Không đơn thuần là nơi an cư lạc nghiệp, dự án còn mở ra cơ hội đầu tư bất động sản sinh lời cao, dự kiến khu vực trong thời gian tới mức giá có thể tăng từ 10 – 30%.
TIỆN ÍCH DỰ ÁN KHU ĐÔ THỊ SÀI GÒN BÌNH AN
Khu đô thị Sài Gòn Bình An Q2 ghi dấu ấn nổi bật chính là sự khéo léo của cuộc sống tiện nghi thành thị và không gian thiên nhiên trong lành, mang đến môi trường sống văn minh, hiện đại giúp cư dân trải nghiệm hưởng thụ cuộc sống đúng cách.
Tiện ích Dự án Khu đô thị Sài Gòn Bình An Quận 2
Những Tiện ích Dự án Khu đô thị Sài Gòn Bình An Quận 2 tiêu biểu như:
- Công viên cây xanh, đường dạo bộ, vườn hoa
- Hồ cảnh quan sinh thái
- Khu tắm nắng, café ngoài trời
- Khu clup –house 5*
- Khu BBQ tiệc nướng
- Hồ bơi
- Bến du thuyền
- Sân golf 18 lỗ, CLB golf
- Khách sạn 400 phòng tiêu chuẩn
- Khu thể dục thể thao trong nhà và ngoài trời
- Trung tâm thương mại, siêu thị sầm uất
- Phòng tập
- Ngoài ra, cuộc sống của cư dân Khu đô thị Sài Gòn Bình An sẽ phong phú hơn, bởi chỉ cách nơi ở vài bước chân là dễ dàng tiếp cận đến Trường đại học giao thông vận tải, Trường đại học Kinh tế, Cao đẳng tài chính hải quan, trường quốc tế Bristish International School, Coopmart, Vinmart, Metro An Phú, Khu công nghệ cao…
Tiện ích khu vui chơi trẻ em Dự án Khu đô thị Sài Gòn Bình An Quận 2
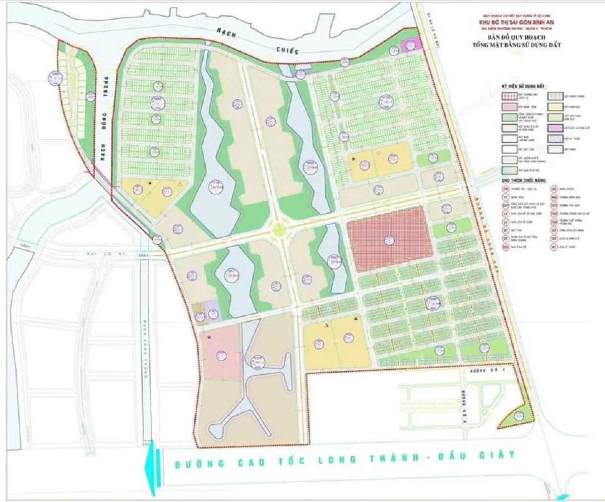
THIẾT KẾ DỰ ÁN KHU ĐÔ THỊ SÀI GÒN BÌNH AN
Khu đô thị Sài Gòn Bình An Quận 2 được quy hoạch trên diện tích lớn cung ứng đa dạng các sản phẩm đất nền, nhà liên kế sân vườn, biệt thự, chung cư cao cấp. Hệ thống cơ sở hạ tầng bài bản, hiện đại, phân khu chức năng hợp lý, gồm đường giao thông nội khu, mạng lưới điện nước âm, chốt canh gác ra vào, lực lượng bảo vệ tuần tra 24/24 đảm bảo an ninh nghiêm ngặt. Các sản phẩm nhà ở có thiết kế chú trọng đến không gian sống, thiên nhiên, nội thất trang bị hiện đại đảm bảo tính an toàn và thẩm mỹ cao.
Mặt bằng Tổng thể Dự án Khu đô thị Sài Gòn Bình An Quận 2
TIẾN ĐỘ THI CÔNG DỰ ÁN KHU ĐÔ THỊ SÀI GÒN BÌNH AN








