Dự án Khu đô thị Mỹ Lệ Capital hay còn có tên thương mại là Felicia City do Công Ty Trách Nhiệm Hữu Hạn Mỹ Lệ làm chủ đầu tư tại mặt tiền đường DT741, Xã Long Hưng, Huyện Phú Riềng, Tỉnh Bình Phước. Khu đô thị Mỹ Lệ Capital có quy mô 45,93 ha với 1.499 nền có diện tích từ 100 m2 – 200 m2. Dự án Mỹ Lệ Bình Phước đã được phê duyệt đồ án và quy định quản lý theo quy hoạch chi tiết xây dựng tỷ lệ 1/500 theo Quyết định số 653/QĐ-UBND vào ngày 27/03/2017.
Phối cảnh Dự án Khu Đô Thị Mỹ Lệ Capital Bình Phước
Tổng quan Dự án Khu Đô Thị Mỹ Lệ Capital Bình Phước
Xem thêm Dự án đất nền mở bán Cuối năm 2019 tại Long An: Dự án VietUc Varea nằm ngay Vị trí Mặt tiền DT824 – Vành đai 4, Xã Lương Hòa, Huyện Bến Lức, Tỉnh Long An. Dự án với tổng diện tích 20,55 ha với hơn 1.290 nền do Công ty TNHH Công Thương Nghiệp Thịnh Hưng làm chủ đầu tư
GIỚI THIỆU DỰ ÁN MỸ LỆ CAPITAL BÌNH PHƯỚC
- Tên dự án: Mỹ Lệ Capital
- Vị trí: Đường DT741, Xã Long Hưng, Huyện Phú Riềng, Tỉnh Bình Phước
- Chủ đầu tư:Công Ty Trách Nhiệm Hữu Hạn Mỹ Lệ
- Quy mô: 45,93 ha
- Loại hình sản phẩm: Đất nền
- Diện tích đất ở: 132.001,75 m2
- Diện tích đất công trình công cộng: 89.564,4 m2
- Diện tích đất giao thông: 127.970,32 m2
- Diện tích đất công viên cây xanh: 37.125,4 m2
- Tổng số dân dự kiến: 9.000 người
- Tiện ích nội khu: Trung tâm thương mại: 12.763 m2, Phòng khám đa khoa: 11.858 m2, Trường trung cấp nghề: 21.826 m2, Trường cấp 1,2: 11.949 m2, Trường mầm non: 7.996 m2, Trạm xăng dầu, kho tàng: 23.169 m2
- Tổng số lượng nền: 1.499 nền
- Diện tích phân lô: 100 m2 – 200 m2
- Pháp lý: Sổ đỏ từng lô
- Tiến độ thi công: Đang thi công hạ tầng, hoàn thiên trục đường chính của dự án
Cổng Dự án Khu Đô Thị Mỹ Lệ Capital Bình Phước
VỊ TRÍ DỰ ÁN KHU ĐÔ THỊ MỸ LỆ CAPITAL BÌNH PHƯỚC
Vị trí Dự án Khu Đô Thị Mỹ Lệ Capital tọa lạc ngay trên Đường DT741, Xã Long Hưng, Huyện Phú Riềng, Tỉnh Bình Phước. Dự án nằm liền kề với Thị xã Phước Long, Thành phố Đồng Xoài cách trung tâm Hành chính Bình Phước tầm 1km.
Vị trí Dự án Khu Đô Thị Mỹ Lệ Capital Bình Phước
TIỆN ÍCH DỰ ÁN KHU ĐÔ THỊ MỸ LỆ CAPITAL BÌNH PHƯỚC
Dự án Mỹ Lệ Bình Phước được chúng tôi đầu tư rất nhiều vào hệ thống tiện ích nội khu như: Khu công viên cây xanh , hệ thống giáo dục , trung tâm thương mại, Phòng khám đa khoa, …
Tiện ích nội khu Dự án Khu Đô Thị Mỹ Lệ Capital Bình Phước
Trường học Dự án Khu Đô Thị Mỹ Lệ Capital Bình Phước
Công viên Dự án Khu Đô Thị Mỹ Lệ Capital Bình Phước
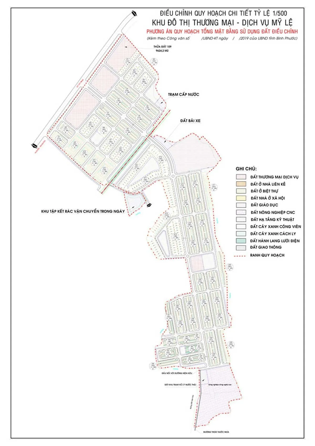
MẶT BẰNG DỰ ÁN KHU ĐÔ THỊ MỸ LỆ CAPITAL BÌNH PHƯỚC
Dự án Khu Đô Thị Mỹ Lệ Capital Bình Phước với tổng số 1.499 nền đất phân lô diện tích từ 100 m2 – 200 m2 duc7uoc759 Cty Mỹ Lệ xây dựng đồng bộ Điện âm – Nước máy cùng với trục chính dự án có lộ giới 31m (vỉa hè 6mx2, lòng đường 8mx2,dãy phân cách 3m) & các trục phụ 19m (vỉa hè 5mx2, lòng đường 9m), 15m (vỉa hè 3,5mx2, lòng đường 8m), 13m (vỉa hè 3mx2, lòng đường 6m)
Mặt bằng Dự án Khu Đô Thị Mỹ Lệ Capital Bình Phước
Nhà phố Dự án Khu Đô Thị Mỹ Lệ Capital Bình Phước
Biệt thự Dự án Khu Đô Thị Mỹ Lệ Capital Bình Phước
MỘT SỐ HÌNH ÀNH CHÚNG TÔI CHỤP LẠI TẠI DỰ ÁN MỸ LỆ CAPITAL


GIÁ BÁN ĐẤT NỀN DỰ ÁN MỸ LỆ CAPITAL BÌNH PHƯỚC
GIÁ BÁN: 350 TRIỆU /NỀN 100M2
| PHƯƠNG THỨC THANH TOÁN MUA ĐẤT NỀN MỸ LỆ ĐỒNG XOÀI | ||
| ĐỢT | TỈ LỆ | THỜI GIAN |
| Đặt cọc: | 30 triệu | |
| Đợt 1 | 30% tổng giá trị hợp đồng (đã bao gồm 30 triệu tiền đặt cọc) | Ký hợp đồng mua bán |
| Đợt 2 | 20% tổng giá trị hợp đồng | Sau 30 ngày kể từ ngày thanh toán đợt 1 |
| Đợt 3 | 10% tổng giá trị hợp đồng | Sau 30 ngày kể từ ngày thanh toán đợt 2 |
| Đợt 4 | 10% tổng giá trị hợp đồng | Sau 30 ngày kể từ ngày thanh toán đợt 3 |
| Đợt 5 | 10% tổng giá trị hợp đồng | Sau 30 ngày kể từ ngày thanh toán đợt 4 |
| Đợt 6 | 3% tổng giá trị hợp đồng | Sau 30 ngày kể từ ngày thanh toán đợt 5 |
| Đợt 7 | 2% tổng giá trị hợp đồng | Sau 30 ngày kể từ ngày thanh toán đợt 6 |
| Đợt 8 | 2% tổng giá trị hợp đồng | Sau 30 ngày kể từ ngày thanh toán đợt 7 |
| Đợt 9 | 2% tổng giá trị hợp đồng | Sau 30 ngày kể từ ngày thanh toán đợt 8 |
| Đợt 10 | 2% tổng giá trị hợp đồng | Sau 30 ngày kể từ ngày thanh toán đợt 9 |
| Đợt 11 | 2% tổng giá trị hợp đồng | Sau 30 ngày kể từ ngày thanh toán đợt 10 |
| Đợt 12 | 2% tổng giá trị hợp đồng | Sau 30 ngày kể từ ngày thanh toán đợt 11 |
| Đợt 13 | 5% tổng giá trị hợp đồng | trong vòng 12 tháng kể từ ngày thanh toán đợt 12 – nhận giấy CNSDĐ |











