Elite Life Long An là Dự án Đất nền Khu đô thị Thương mại đẳng cấp Ven Sông tọa lạc ngay Xã Long Hậu, huyện Cần Giuộc, tỉnh Long An. Dự án Nhà phố Elite Life Long Hậu có quy mô 53.843m² do Công ty Cổ phần Đầu tư Thương mại Dịch vụ Tân Thái Thịnh làm chủ đầu tư và Đất Xanh Nam Bộ phát triển dự án. Với quy mô 310 căn nhà phố liên kế và nhà phố vườn được xây dựng sẵn 1 trệt 2 lầu đang thu hút rất nhiều nhà đầu tư trong khu vực và Thành phố Hồ Chính Minh đầu năm 2021.
Dự án Nhà phố Elite Life Long Hậu Long An
THÔNG TIN DỰ ÁN NHÀ PHỐ ELITE LIFE LONG HẬU LONG AN
| Tên dự án: | Elite Life Long An |
| Vị trí: | Xã Long Hậu, huyện Cần Giuộc, tỉnh Long An |
| Chủ đầu tư: | Công ty Cổ phần Đầu tư Thương mại Dịch vụ Tân Thái Thịnh |
| Đơn vị tư vấn: | Công ty TNHH Một thành viên Tư vấn Thiết kế Kiến trúc Long An |
| Ngân hàng cho vay: | Ngân hàng TMCP Hàng Hải Việt Nam – MSB |
| Tổng diện tích dự án: | 53.843m². |
| Đất xây dựng nhà ở: | 27.585m2 trong đó gồm: Đất ở nhà liên kế 22.889m2, Đất ở nhà phố 1.398m2, Đất ở vườn 3.298m2 |
| Đất công công, dịch vụ: | 4.671m2 trong đó gồm: Đất nhà trẻ: 900m2, Đất văn hóa TDTT: 524m2, Đất thương mại, dịch vụ: 3.247m2 |
| Đất kỹ thuật: | 166m2 trong đó gồm: Khu xử lý nước thải: 150m2, Trạm điện: 16m2 |
| Đất giao thông: | 17.385m2 |
| Đất công viên cây xanh: | 4.036m2 |
| Tổng Số dân dự kiến: | 1.240 người |
| Tổng sản phẩm: | 310 căn nhà phố |
| Loại hình xây dựng: | 1 trệt 2 lầu |
| Diện ích nhà phố liên kế: | 80m2m2, 82m2, 92m2, 100m2, 101m2, 108m2, 116m2 |
| Diện ích nhà vườn: | 152 m2 – 258 m2 |
| Tiện ích nội khu: | Các công trình dịch vụ, công cộng gồm: các công trình thương mại dịch vụ, giáo dục (Nhà trẻ), văn hóa – Thể dục thể thao với tổng diện tích 4.671m – 8,68%. |
| Pháp lý dự án: | Số:42503/QĐ-UBND Huyện Cần Giuộc Quyết định Về việc phê duyệt đồ án quy hoạch chi tiết xây dựng tỷ lệ 1/500 Khu dân cư thương mại Tân Thái Thịnh với tên thương mại Elite Life. Giấy phép xây dựng |
| Thời gian hoàn thành: | 2022 |
LỄ KÝ KẾT HỢP TÁC & KICK OFF DỰ ÁN ELITE LIFE
Ngày 07/03/2021 tại TP. Hồ Chí Minh, Công ty Cổ phần Đất Xanh Nam Bộ và Công ty Cổ phần Đầu tư Thương mại Dịch vụ Tân Thái Thịnh đã ký kết hợp tác phát triển dự án khu dân cư Elite Life tại Long Hậu, Cần Giuộc, Tỉnh Long An.
Ký kết hợp tác phát triển dự án Elite Life
Kick Off Dự án Elite Life Long Hậu Long An


VỊ TRÍ DỰ ÁN ELITE LIFE LONG HẬU LONG AN
Vị trí Dự án Khu đô thị Thương mại đẳng cấp Ven Sông Elite Life Long An nằm ngay trung tâm của Xã Long Hậu, huyện Cần Giuộc, tỉnh Long An. Dự án Nhà phố Biệt thự Elite Life Long An có ranh giới khu đất với tứ cận giáp ranh với khu vực liền cận như sau:
- Phía Bắc: Giáp ĐT.826E, đường Ấp 3 Long Hậu, đối diện là Khu dân cư Vĩnh Trường
- Phía Nam: Giáp Khu dân cư thương mại dịch vụ của Công ty CP XDTM Thành Hiếu.
- Phía Đông: Giáp rạch Đất Thánh đối diện là Khu dân cư, tái định cư Thái Sơn.
- Phía Tây: Giáp Khu dân cư thương mại dịch vụ của Công ty CP XDTM Thành Hiếu.
Sơ đồ Vị trí Dự án Nhà phố Elite Life Long Hậu Long An
Theo thông tin mới nhất năm 2021 do Địa Ốc Số cập nhật từ Google Maps thì Vị trí Dự án Elite Life Long Hậu Long An dể dàng tiếp cận với các địa điểm trọng yếu trong khu vực như sau:
Vị trí liên kết vùng Dự án Elite Life Long Hậu Long An
- Đại lộ Long Hậu 40M(6 làng xe) kết nối cảng Quốc tế Hiệp Phước
- Cao tốc Bến Lức Long Thành kết nối từ Đông sang Tây
- Cảng Hiệp Phước – Tuyến vành đai 4 kết nối các tỉnh thành phố trong bác giác kim cương.
- Tuyến vành đai 3 kết nối các Quận, Huyện và các tỉnh vùng ven TP.HCM.
- Đại lộ Nguyễn Hữu Thọ vào đô thị Phú Mỹ Hưng và Trung tâm TP.HCM
Cao tốc kết nối Đồng Bằng Sông Cửu Long:
Cao tốc Cần Thơ – Cà Mau được Thủ tướng giao Bộ Giao thông Vận tải nghiên cứu điều chỉnh quy hoạch trước năm 2030. Trong đó, đoạn Cần Thơ – Bạc Liêu sẽ thực hiện bằng ngân sách nhà nước trong kế hoạch đầu tư công trung hạn giai đoạn 2021-2025. Còn đoạn Bạc Liêu – Cà Mau, UBND Cà Mau được giao chuẩn bị đầu tư dự án, trong đó nghiên cứu phương án xã hội hóa trong giai đoạn 2021-2025.
Cao tốc kết nối Đồng Bằng Sông Cửu Long
Cao tốc Trung Lương – Mỹ Thuận là tuyến cao tốc nằm trong trục cao tốc Bắc – Nam phía Đông, đến đầu tháng 10, khối lượng thi công đạt gần 65%. Theo chủ đầu tư, cuối năm nay dự án sẽ thông tuyến và cho ôtô dưới 16 chỗ, xe tải dưới 2,5 tấn chạy trong dịp Tết Nguyên đán 2021.
Cao tốc Mỹ Thuận – Cần Thơ dài gần 23 km, vốn đầu tư hơn 4.800 tỷ đồng, sẽ được khởi công tháng 11 tới. Tỉnh Vĩnh Long và Đồng Tháp đang hoàn tất việc đền bù, giải tỏa hơn 1.500 hộ dân để bàn giao mặt bằng cho đơn vị thi công. Thứ trưởng Bộ Giao thông vận tải Nguyễn Nhật cho biết, dự án cao tốc Mỹ Thuận – Cần Thơ sớm hoàn thành để kết nối với các dự án xây dựng cầu Mỹ Thuận 2 và cao tốc Trung Lương – Mỹ Thuận vào năm 2023. Khi đó, đường cao tốc sẽ nối thẳng từ TP HCM đến Cần Thơ.
Cao tốc Mỹ An – Cao Lãnh dài 26 km, rộng 17 m, quy mô 4 lànxe, vận tốc thiết kế 80 km/h, dự kiến thực hiện trong giai đoạn 2021-2025. Công trình có tổng mức đầu tư hơn 4.500 tỷ đồng. Trong đó, phần vay ODA của Quỹ hợp tác phát triển kinh tế Hàn Quốc trên 3.800 tỷ đồng (hơn 196 triệu USD) và hơn 690 tỷ đồng của Chính phủ.
TIỆN ÍCH DỰ ÁN ELITE LIFE CẦN GIUỘC
Tiện ích Dự án Elite Life Long Hậu Long An được thừa hưởng toàn bộ tiện ích của khu vực Long Hậu và Khu đô thị cảng Hiệp Phước. Đồng thời cũng thừa hưởng hệ thống tiện ích của khu đô thị Phú Mỹ Hưng khi chỉ cách khu Nam Sài Gòn chỉ 5km,
Hệ thống Tiện ích Dự án Elite Life Long Hậu Long An
VỚI HƠN 25 TIỆN ÍCH BÊN TRONG DỰ ÁN Là Khu Compound Đầy Đủ Tiện Ích Đẳng Cấp Nhất Trong Khu Vực:
| Công viên ven sông | Tiểu cảnh cây xanh |
| Đài phun nước | Phố đi bộ |
| Camera an ninh 24/7 | Khu tiệc cưới ngoài trời |
| Cảnh quan tự nhiên | Khu thương mại |
| Lối đi bộ | Trung tâm thương mại |
| Vườn thư giản | Điểm giữ xe |
| Đầm sen | Hệ thống chiếu sáng công viên ven sông |
| Hệ thống chiếu sáng phố đi bộ | Tường vây dự án |
| Phòng Gym | Nhà điều hành |
| Sân Tennis | Nhà hàng ven song |
| Lối đi bộ ven sông | Khu thể thao ngoài trời |
| Khu vui chơi trẻ em | Quảng trường trung tâm |
Tiện ích Nội khu Dự án Elite Life Long An
KHU TRUNG TÂM THƯƠNG MẠI VỚI DIỆN TÍCH 3000M2 PHỤC VỤ CƯ DÂN TRONG DỰ ÁN VÀ KHU VỰC XUNG QUANH
Tiện ích trung tâm thương mại Dự án Elite Life Long An
TRƯỚC NHÀ LÀ “PHỐ ĐI BỘ”: Khu Dân Cư Duy nhất được thi công công bằng gạch tự chèn chiệu lực cao, được nhập khẩu trực tiếp từ nước ngoài
Phố đi bộ Elite Life Long An


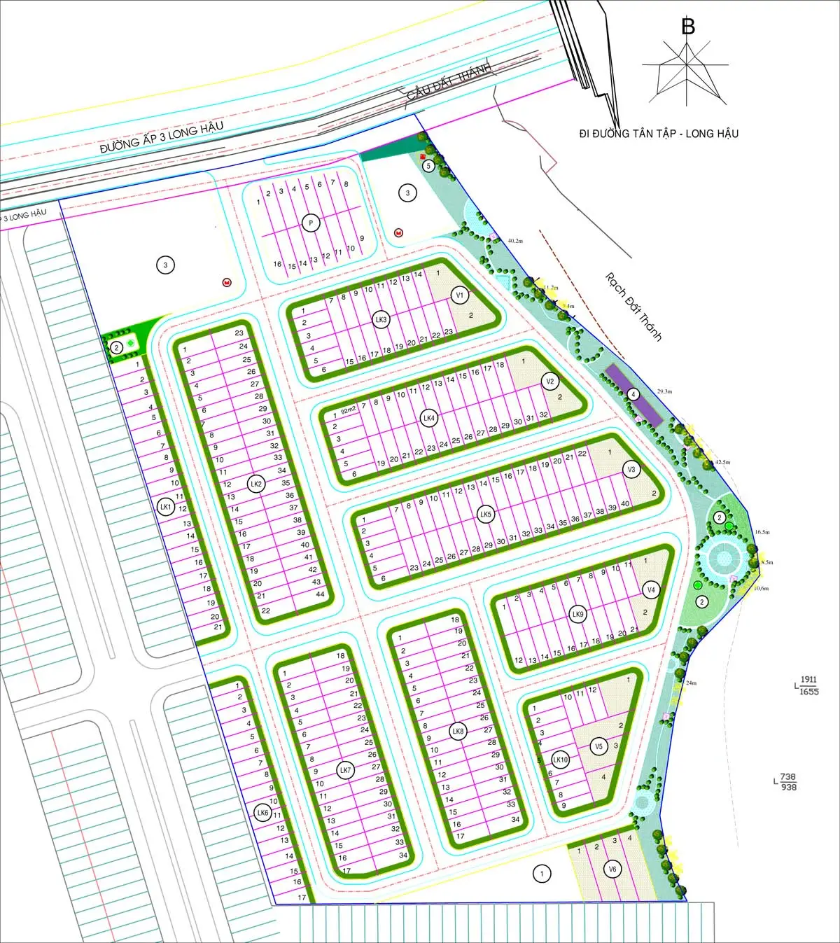
MẶT BẰNG & THIẾT KẾ DỰ ÁN ELITE LIFE LONG AN
Mặt bằng Dự án Khu đô thị Thương mại đẳng cấp Ven Sông Elite Life Long An được xây dựng trên quy mô hơn 5.3ha với 2 khu chính là: Khu ở gồm nhà liên kế, nhà phố, nhà vườn & Khu công trình dịch vụ, công cộng. Nhà phố Elite Life được quy hoạch năm trong tổng thể một khu đô thị kiểu mẫu, đồng bộ, hiện đại. Với sản phẩm là nhà phố liên kế, biệt thự được xây sẵn theo xu hướng thiết kế hiện đại, đầy sang trọng, lịch lãm, thể hiện đẳng cấp xứng tầm với những cư dân văn minh, thời thượng.
Mặt bằng Dự án Elite Life Long An
Mặt bằng phân lô Dự án Khu đô thị Thương mại đẳng cấp Ven Sông Elite Life Long An
PHỐI CẢNH NHÀ PHỐ ELITE LIFE LONG AN

THIẾT KẾ NHÀ PHỐ LIÊN KẾ ELITE LIFE LONG AN

THIẾT KẾ NHÀ PHỐ VƯỜN ELITE LIFE LONG AN

NỘI THẤT NHÀ PHỐ ELITE LIFE LONG AN
Nội thất Nhà phố Elite Life Long An

DANH MỤC VẬT LIỆU BÀN GIAO NHÀ PHỐ ELITE LIFE

HÌNH ẢNH THỰC TẾ ELITE LIFE LONG HẬU LONG AN



GIÁ BÁN NHÀ PHỐ ELITE LIFE LONG AN
Giá bán Nhà phố Elite Life: 3,4 Tỷ/Căn
Giá nhà phố Elite Life Long Hậu Long An
9 lý do nên mua Nhà phố Elite Life Long Hậu Long An
PHƯƠNG THỨC THANH TOÁN NHÀ PHỐ ELITE LIFE
| ĐỢT | THỜI GIAN | PTTT 1 – 25% | PTTT 2 – 60% | PTTT 3 – 95% |
| Đợt 1 | Booking | 100 triệu/căn | 100 triệu/căn | 100 triệu/căn |
| Đợt 2 | Ký TTMB(07 ngày sau khi đặt cọc, bao gồm 100Tr Booking) | 25% | 60% | 95% |
| Đợt 3 | 1 Tháng ký TTMB | 10% | 5% | |
| Đợt 4 | 2 Tháng ký TTMB | 10% | 5% | |
| Đợt 5 | 3 Tháng ký TTMB | 10% | 5% | |
| Đợt 6 | 4 Tháng ký TTMB | 5% | 5% | |
| Đợt 7 | 5 Tháng ký TTMB | 5% | 5% | |
| Đợt 8 | 6 Tháng ký TTMB | 5% | ||
| Đợt 9 | 7 Tháng ký TTMB | 5% | ||
| Đợt 10 | 8 Tháng ký TTMB | 20% | 10% | |
| Đợt 11 | Nhận GCNQSNO | 5% | 5% | 5% |
| TỔNG CỘNG | 100% | 100% | 100% | |
| Chiết khấu | – | 3% | 5% |
















