CityLand triển khai đại đô thị dự án với mức đầu tư hơn 6.000 tỷ đồng tại Khu Đông Bắc Sài Gòn. Với vị thế vàng ngay trung tâm Quận Gò Vấp, dự án là điểm nhấn thị trường từng gây tiếng vang nhất trên thị trường BĐS Thành phố Hồ Chí Minh. Trong khu phức hợp chục ngàn tỷ này bao gồm Căn hộ CityLand Park Hills, CityLand Center Hills và CityLand Garden Hills.
Toàn bộ dự án là một khu dân cư khép kín cùng kiến trúc châu âu hiện đại và bắt mắt, lồng ghép là những mảng xanh, hồ tiểu cảnh hài hòa với kiến trúc ngoại nhập.
Tổng Thể Cityland Park Hills và Garden Hills
// KHU CĂN HỘ CITYLAND PARK HILLS
- Tên dự án: Khu căn hộ cao cấp Cityland Park Hills
- Vị trí dự án: 18 Phan Văn Trị, Phường 10, Quận Gò Vấp, Thành phố Hồ Chí Minh
- Đơn vị phân phối: Địa Ốc Số
- Tổng quy mô toàn dự án: 270.000 m2
- Tổng quy mô dân số dự kiến: 10.000 người
- Phong cách kiến trúc: Châu Âu
- Tiện ích: Hồ bơi, Công viên quảng trường, Hồ tiểu cảnh, Trung tâm thương mại, Trung tâm y tế, Trường liên cấp Quốc tế…
- Bệnh viện y tế: 3,441 m2
- Công viên cây xanh: 20,310 m2
- Trung tâm thương mại: 3 cái 27,410 m2
- Nhà trẻ dự án: 1,739 m2
- Trường học liên cấp Quốc tế: 8,500 m2
- Loại căn: 1 Phòng ngủ + 2 Phòng ngủ + 3 Phòng ngủ
- Số lượng sản phẩm: 968 Căn
- Số block: 5
- Tầng cao: 12
- Tòa CH1 220 Căn hộ – Từ 2 đến 3 Phòng ngủ – Diện tích 66 m2 đến 120 m2
- Tòa CH2A 220 Căn hộ – Từ 2 đến 3 Phòng ngủ – Diện tích 67 m2 đến 113 m2
- Tòa CH2B 308 Căn hộ – Từ 1 đến 3 Phòng ngủ – Diện tích 45 m2 đến 106 m2
- Tòa CH3 220 Căn hộ – Từ 2 đến 3 Phòng ngủ – Diện tích 66 m2 đến 121 m2
Phối Cảnh Khối Căn Hộ Cityland Park Hills
// PHÂN KHU CĂN HỘ CITYLAND GARDEN HILLS
- Tên dự án: Khu nhà phố – Biệt thự Cityland Garden Hills
- Vị trí dự án: 18 Phan Văn Trị, Phường 10, Quận Gò Vấp, Thành phố Hồ Chí Minh
- Tổng sản phẩm: 973 Nhà phố và Biệt thự
- Nhà phố: 891 Căn
- Biệt thự: 82 Căn
- Phong cách thiết kế: Châu Âu
- Tông màu: Trắng + Vàng
- Diện tích Nhà phố thương mại Đất: 100 m2 – Xây dựng 80 m2 – Diện tích sàn 396.46 m2 – Cao 5 tầng
- Diện tích Nhà phố liền kề Đất: 100 m2 – Xây dựng 80 m2 – Diện tích sàn 371.12 m2 – Cao 4 tầng – Có 1 hầm
- Diện tích Biệt thự Đất: 228.82 m2 – Xây dựng 124.5 m2 – Diện tích sàn 396.46452.9 m2 – Cao 4 tầng
- Diện tích Nhà phố căn góc Đất: 142 m2 – Xây dựng 100.4 m2 – Diện tích sàn 607 m2 – Cao 5 tầng
Nhà Nhố – Biệt Thự Cityland Garden Hills
// NHỮNG ĐIỂM NỔI BẬT CỦA CITYLAND TRÊN THỊ TRƯỜNG BẤT ĐỘNG SẢN ĐÔNG BẮC SÀI GÒN
Gò Vấp đã từ lâu trở thành một trong những Quận được đánh giá có tốc độ phát triển chóng mặt trên địa bàn thành phố Hồ Chí Minh, và còn đặc biệt hơn với sự xuất hiện của Khu đô thị kiểu mẫu 27 heta của CityLand, đã như một cú đẩy ngoạn mục khiến giá bất động sản nơi đây leo thang, cùng với đó Gò Vấp dửng dưng đã phồn hoa nay càng phồn hoa hơn. Giờ đây nhắc đến Gò Vấp là nhắc đến một vùng đất nhộn nhịp trù phú, phát triển được xem như Quận 1 thứ 2 của Sài Gòn.
Nhìn siêu dự án Nhà phố Cityland – Căn hộ Cityland – Khu Biệt thự Cityland từ trên cao, dự án như một đô thị Châu Âu phồn thịnh và tráng lệ giữa lòng Thành phố Hồ Chí Minh.
Bên cạnh một môi trường sống đẳng cấp song hành với những tiện ích sa hoa mà Cityland cung cấp chính là điểm thu hút khó cưỡng đối với giới “Nhà Giàu” trên địa bàn.
Mỗi sản phẩm được xây dựng tại Cityland Gò Vấp chính là một tác phẩm kiến trúc đầy nghệ thuật mà chủ đầu tư đã dốc toàn tâm trong từng đường nét, kiến tạo một tổ ấm vừa quyến rũ và đầy đủ tiện nghi.
Một Phần Cityland Từ Trên Cao
// THIẾT KẾ MỖI SẢN PHẨM TẠI CITYLAND PHAN VĂN TRỊ
Mặt Bằng Cityland Gò Vấp
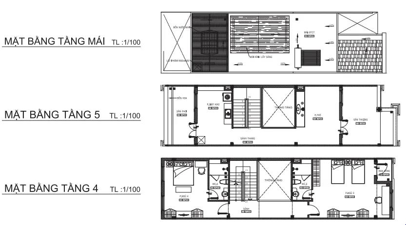
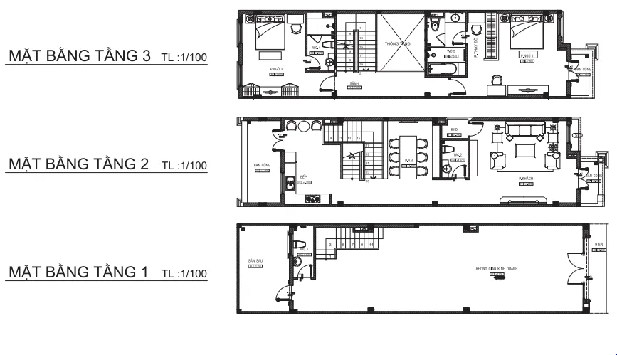
THIẾT KẾ TỶ LỆ 1/100 MẪU NHÀ PHỐ THƯƠNG MẠI


THIẾT KẾ 1/100 MẪU NHÀ PHỐ LIỀN KỀ


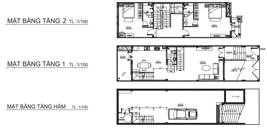
THIẾT KẾ 1/100 MẪU BIỆT THỰ CITYLAND


VIDEO DỰ ÁN CITYLAND GÒ VẤP “THIÊN ĐƯỜNG CHÂU ÂU TẠI SÀI GÒN” – NHẬN GIẢI THƯỞNG “BEST LUXURY DEVELOPER SOUTHEAST”
Ngày 13/12 vừa qua, lễ trao giải bất động sản Dot Property Đông Nam Á 2018 đã diễn ra tại khách sạn Intercontinential, TP HCM. Trong buổi trao giải, tập đoàn Dot Property chính thức công bố và vinh danh những đơn vị chiến thắng ở nhiều hạng mục cho chủ đầu tư, dự án và doanh nghiệp hoạt động trong ngành.
Năm nay, giải thưởng khu vực Đông Nam Á của Dot Property có sự tham gia tranh giải của hơn 20 nhà phát triển dự án hàng đầu đến từ các quốc gia như Singapore, Việt Nam, Thái Lan, Philippines, Indonesia…
Vượt qua nhiều tên tuổi bất động sản lớn của Đông Nam Á, CityLand đoạt danh hiệu “Chủ đầu tư Bất động sản cao cấp tốt nhất Đông Nam Á 2018 – Best Luxury Developer Southeast Asia”. Đây là một trong những giải thưởng quan trọng của buổi trao giải.
Cityland đạt giải thưởng quốc tế






