Dự án The Sunrise Bay Đà Nẵng tọa lạc tại vị trí đắc địa thuộc hai quận trung tâm của Đà Nẵng là Hải Châu và Thanh Khê. Được đầu tư bởi Công ty TNHH The Sunrise Bay và thiết kế cũng như xây dựng bởi các tập đoàn uy tín trên thế giới, siêu đô thị đẳng cấp The Sunrise Bay Đà Nẵng hứa hẹn sẽ là môi trường sống hoàn hảo cho cư dân thượng lưu và là điểm đến lý tưởng cho khách du lịch trong tương lai.
Toàn cảnh Dự án The Sunrise Bay Đà Nẵng
TỔNG QUAN DỰ ÁN THE SUNRISE BAY ĐÀ NẴNG
- Tên dự án: The Sunrise Bay
- Vị trí: đường Nguyễn Tất Thành, quận Hải Châu, TP Đà Nẵng
- Chủ đầu tư: Công ty TNHH The Sunrise Bay
- Khu đô thị The Sunrise Bay được quy hoạch xây dựng và phát triển đồng bộ bởi những công ty kiến trúc hàng đầu thế giới: kiến trúc sư Moshe Safdie, công ty thiết kế quy hoạch và kiến trúc Aedas và công ty thiết kế cảnh quan ADSA INC.
- Tổng diện tích: 181 ha
- Sản phẩm: Biệt thự đơn lập, biệt thự song lập, nhà phố, nhà phố thương mại.
- Tiện ích: sân golf, trường học, bệnh viện quốc tế, đài nước, bể bơi, trung tâm hội nghị quốc tế, khu bến cảng dành riêng cho du thuyền của cư dân, tòa nhà văn phòng, sân chơi cho trẻ em…
Toàn cảnh Dự án The Sunrise Bay Đà Nẵng
LỢI THẾ DỰ ÁN THE SUNRISE BAY ĐÀ NẴNG
+ Sở hữu vị trí đắc địa: Tọa lạc tại đường Nguyễn Tất Thành, phường Thanh Bình – phường Hải Phước, quận Hải Châu, Thành Phố Đà Nẵng, dự án The Sunrise Bay sở hữu ba mặt tiền đường, mặt tiền đường thứ nhất là đường Nguyễn Tất Thành, hai mặt tiền đường còn lại hướng ra biển Đà Nẵng. Được xem là vị trí có một không hai ngay tại thành phố biển, dự án trở thành điểm đến lí tưởng cho hoạt động nghỉ ngơi, giải trí và làm việc.
+ Là khu đô thị lấn biển đầu tiên tại Đà Nẵng: Với quy mô 171 ha diện tích đất liền và 18 ha diện tích đảo, các chuyên gia địa ốc nhận định rằng một khi dự án được hoàn thành sẽ góp phần quan trọng nâng tầm vóc thiết kế cảnh quan của Đà Nẵng nói riêng và của khu vực miền Trung nói chung.
Dự án được xem như là nóc nhà của thành phố Đà Nẵng vì có thể quan sát được cảnh quan đô thị tại những điểm cách xa như đỉnh Sơn Trà, đèo Hải Vân cũng như những luồng hàng hải trên biển hay tuyến hàng không trên bầu trời.
Dự án Khu đô thị The Sunrise Bay Đà Nẵng
+ Hệ thống tiện ích, ngoại khu cao cấp: Dự án sở hữu hơn 2,5 ha diện tích nội khu vượt bậc với hàng loạt hạng mục tiêu biểu như: bến du thuyền, câu lạc bộ biển, trường học quốc tế, tuyến đường đi bộ nằm dọc bờ biển cùng hàng cây xanh mướt và khu đại lộ rộng sẽ nối liền khu trung tâm văn hóa với những dự án khác.
Ngoài ra, ngay trên mặt tiền đường Nguyễn Tất Thành là tổ hợp dịch vụ thương mại với trung tâm văn hóa, trung tâm thương mại, cao ốc văn phòng. Phía tây dự án là khu bán đảo mini với hàng loạt nhà hàng, club, shophouse với nhiều phong cách trang trí khác nhau.
+ Tiềm năng gia tăng giá trị: Từ trước đến nay, Đà Nẵng luôn là địa điểm du lịch thu hút hàng chục ngàn lượt khách du lịch trong và ngoài nước vì vậy các khu resort và khách sạn luôn trong tình trạng cháy phòng. Nhu cầu xây dựng khu dưỡng, resort giải trí cũng chính vì thế mà không ngừng tăng cao nhằm đáp ứng nhu cầu của thị trường. Chính vì thế, dự án The Sunrise Bay Đà Nẵng sẽ trở thành viên ngọc sáng thu hút sự quan tâm của giới đầu tư.
Khu đô thị The Sunrise Bay Đà Nẵng
+ Lợi thế hạ tầng và hút vốn đầu tư: Hiện nay, hàng loạt công trình trọng điểm, các đô thị hiện đại đang được TP Đà Nẵng triển khai, kích cầu cho sự phát triển của bất động sản. Trong đó có dự án mở rộng hầm đường bộ Hải Vân, thúc đẩy giao thương của vùng Tây Bắc Đà Nẵng; dự án cảng Liên Chiểu (tổng vốn đầu tư 3.400 tỷ đồng), dự án mở rộng tuyến đường Nguyễn Tất Thành đến cảng Liên Chiểu, cải tạo bờ biển Nguyễn Tất Thành, xây dựng quảng trường Nguyễn Tất Thành… sẽ là đòn bẩy để phát triển kinh tế, xã hội của Đà Nẵng…
Sau thành phố Hồ Chí Minh và Hà Nội, Đà Nẵng là thành phố tiếp theo được định hướng trở thành đô thị loại đặc biệt với mục tiêu trong giai đoạn 2030-2045 trở thành trung tâm kinh tế – xã hội của cả nước và Đông Nam Á, giữ vai trò là tâm điểm du lịch, thương mại, tài chính và logistics. Thành phố sẽ tập trung nguồn lực để phát triển hệ thống kết cấu hạ tầng, song song mở rộng thu hút đầu tư, phát triển loạt đô thị trọng điểm, củng cố vị thế điểm đến hàng đầu trong mắt nhà đầu tư trong và ngoài nước.
VỊ TRÍ DỰ ÁN THE SUNRISE BAY ĐÀ NẴNG
Vị trí dự án The Sunrise Bay Đà Nẵng là một khu đô thị mang tầm quốc tế nằm trên trục Đại lộ chính Nguyễn Tất Thành, hướng trực diện ra vịnh Đà Nẵng và đối diện bán đảo Sơn Trà. Đây là một vị trí đẹp hiếm hoi còn sót lại tại trung tâm thành phố đáng sống bậc nhất Việt Nam.
Vị trí Dự án The Sunrise Bay Đà Nẵng
Đồng thời là khu vực trung tâm của mọi hoạt động kinh tế, ngoại giao, văn hóa và dễ dàng tiếp cận hệ thống tiện ích, trung tâm thương mại cao cấp nhất Đà Nẵng.
Phía Đông khu đô thị The Sunrise Bay giáp bờ tây sông Hàn và khu dân cư Thuận Phước; phía Nam giáp tuyến đường Nguyễn Tất Thành, ôm một vòng eo biển lớn tạo nên một cung đường đẹp tuyệt vời chắc chắn sẽ để lại ấn tượng sâu sắc cho mỗi du khách khi đặt chân đến đây.
Khu đô thị The Sunrise Bay còn nằm liền kề khu công nghệ cao Đà Nẵng, hứa hẹn sẽ là nơi dừng chân lý tưởng cho những chuyên viên, người lao động công tác tại khu công nghệ này.
Vị trí Khu đô thị The Sunrise Bay Đà Nẵng
Từ dự án, cư dân có thể kết nối đến cầu sông Hàn trong 10 phút, đến cầu Thuận Phước, trung tâm hành chính của thành phố trong 5 phút, đến bãi biển Mỹ Khê trong 16 phút, đến chùa Linh Ứng trong 17 phút và đến sân bay quốc tế Đà Nẵng trong 15 phút…
Là dự án đô thị lấn biển lớn nhất Đà Nẵng, The Sunrise Bay đặc biệt chú trọng đến việc nghiên cứu các giải pháp lấn biển nhằm tăng quỹ đất của thành phố, khai thác triệt để điều kiện tự nhiên. Hiếm có dự án nào cùng lúc thuộc hai quận trung tâm của Đà Nẵng là quận Hải Châu và quận Thanh Khê như The Sunrise Bay. Nhờ tiếp giáp với biển thuộc vịnh Đà Nẵng, cư dân The Sunrise Bay được đón trọn những làn gió mát và không khí trong lành đậm đà vị biển của thiên nhiên.
Tiềm năng BĐS Đà Nẵng
Định hướng trở thành Thành phố đáng sống nhất Việt Nam, Đà Nẵng đang bám sát Hà Nội và TP HCM về tốc độ tăng trưởng và vị thế giao thương. Với lợi thế là thủ phủ du lịch, thành phố này cũng ngày càng phát triển năng lực kết nối, ngoại giao tầm khu vực và trên đà trở thành trung tâm quốc tế. Sự phồn thịnh của Đà Nẵng kéo theo sự phát triển của thị trường bất động sản và sự xuất hiện của những dự án cao cấp, trong đó có Dự án The Sunrise Bay.
Vừa qua, Thủ tướng Chính phủ đã phê duyệt đề án xây dựng thành phố Đà Nẵng trở thành trung tâm tài chính quy mô khu vực Đông Nam Á. Mục tiêu đưa Đà Nẵng trở thành thành phố quốc tế, một phần của mạng lưới chuỗi cung ứng toàn cầu; cửa ngõ tuyến hành lang kinh tế Đông Tây; điểm đến phong cách sống toàn cầu; trung tâm du lịch, dịch vụ, kinh tế biển của Việt Nam và Đông Nam Á…
Bên cạnh đó, Chủ tịch UBND TP.Đà Nẵng cũng đã ký quyết định phê duyệt danh mục 57 dự án trọng điểm ưu tiên thu hút đầu tư. Có thể kể đến dự án hệ thống giao thông vận tải công cộng khối lượng lớn như hệ thống tàu điện ngầm, xe điện bánh sắt với tổng mức đầu tư dự kiến 54.500 tỷ đồng; Dự án tàu điện kết nối từ sân bay Đà Nẵng, qua trung tâm thành phố đến Hội An theo tuyến đường ven biển đến phố cổ Hội An.
Ngoài ra, Đà Nẵng còn có biển Mỹ Khê, nằm trong top 6 bãi biển đẹp nhất hành tinh (theo Forbes bình chọn), giá trị bất động sản ven biển cũng đang trở thành khu vực có biên độ phát triển, tăng giá cao. Cung đường Nguyễn Chí Thanh là một trong số đó.
Nơi đây có bãi biển đẹp và nhiều danh lam thắng cảnh; đã phát triển đồng bộ về hạ tầng. Đà Nẵng đang phấn đấu để trở thành đô thị loại 1 trực thuộc Trung ương… Đó chính là những cam kết mạnh mẽ cho sự gia tăng bền vững giá trị bất động sản tại thành phố xinh đẹp này và The Sunrise Bay là khu đô thị được hưởng lợi đáng kể.
TIỆN ÍCH DỰ ÁN THE SUNRISE BAY ĐÀ NẴNG
Là một khu đô thị đẳng cấp quốc tế, The Sunrise Bay được kiến tạo để trở thành tổ hợp khách sạn 5 sao – resort – nhà hàng – sân golf 18 lỗ tiêu chuẩn hàng đầu với hệ thống tiện ích đẳng cấp: trung tâm hội nghị quốc tế, khu bến cảng dành riêng cho du thuyền của cư dân, tòa nhà văn phòng cùng các dãy biệt thự, nhà phố, shophouse…
Tiện ích Dự án The Sunrise Bay Đà Nẵng
Cụ thể:
Dự án sở hữu bãi biển nhân tạo được xây dựng kết hợp cùng bãi biển tự nhiên để điều hòa khí hậu, mang đến cho du khách sự dễ chịu nhất trong bất kỳ thời tiết nào.
Bến du thuyền The Sunrise Bay Đà Nẵng
Bến du thuyền siêu sang: cư dân tại đây có thể tận hưởng ngày nghỉ hoặc tổ chức các bữa tiệc ngoài trời sang trọng trên du thuyền trong không gian thiên nhiên thoáng đãng với cảnh biển, cảnh thành phố thơ mộng.
Trong khu resort cao cấp, hệ thống sân golf 18 lỗ được thiết kế với diện tích 80ha đạt tiêu chuẩn chất lượng quốc tế.
Khu vực phòng tập thể thao, phòng Gym được bố trí các thiết bị hiện đại, có view hướng ra hồ bơi và xa hơn nữa là hướng ra biển. Phong cách phục vụ tận tâm chu đáo của đội ngũ nhân viên chuyên nghiệp, nhiệt tình chắc chắn sẽ làm hài lòng khách hàng.
Tiện ích Biển Dự án The Sunrise Bay Đà Nẵng
Phòng khám đa khoa ngay trong nội khu giúp cư dân The Sunrise Bay được quan tâm đến sức khỏe và thỏa mãn nhu cầu khám chữa bệnh.
Vấn đề an ninh được đảm bảo khi camera hoạt động 24/24 cùng đội ngũ bảo vệ đã được đào tạo một cách bài bản sẽ đem đến sự an toàn nhất cho tất cả những người sinh sống tại khu đô thị The Sunrise Bay.
Đặc biệt, tại dự án còn có tuyến đường đại lộ nối từ khu trung tâm văn hóa dự án đến với các công trình bên trong đất liền. Cũng như nhiều khu đô thị khác, nằm xen kẽ giữa các công trình công cộng và khu dân cư, The Sunrise Bay cũng sẽ có những quảng trường, kênh dẫn nước, công viên cây xanh.
TIỆN ÍCH NGOẠI KHU DỰ ÁN THE SUNRISE BAY ĐÀ NẴNG
Sở hữu vị trí trung tâm quận Hải Châu (được ví như quận 1 của TP HCM), bao quanh khu đô thị The Sunrise Bay là cơ quan công an thành phố, tòa nhà trung tâm hành chính của toàn thành phố Đà Nẵng, cơ quan văn phòng nhà nước…
Hệ thống trường học tốt nhất TP Đà Nẵng cũng ở đây, phải kể đến: trường mầm non (Hồng Nhung, ACB..); tiểu học (Phù Đổng) đến trung học (Trưng Vương, Phan Chu Trinh, Lê Quý Đôn..).
Vị trí liên kết vùng Khu đô thị The Sunrise Bay Đà Nẵng
Từ đây, cư dân The Sunrise Bay cũng có thể dễ dàng di chuyển đến bất kỳ địa điểm nào của thành phố đáng sống Đà Nẵng và các vùng lân cận mà không mất nhiều thời gian. Chỉ mất 5 phút để đến ga Đà Nẵng, 10 phút để đến cầu Rồng, 15 phút để đến sân bay Đà Nẵng và bán đảo Sơn Trà, 25 phút đến Ngũ Hành Sơn và Bà Nà Hills, 35 phút đến phố cổ Hội An, 50 phút đến TP Huế…
Hơn nữa, dự án The Sunrise Bay còn được hưởng rất nhiều tiện ích từ các dự án công trình liền kề như hồ sinh thái, các trung tâm thương mại lớn, trung tâm văn hóa, khu kỹ thuật công nghệ và khu trường học quốc tế liên cấp rộng 2,5 ha.
MẶT BẰNG DỰ ÁN THE SUNRISE BAY ĐÀ NẴNG
The Sunrise Bay Đà Nẵng được thiết kế bởi kiến trúc sư, nhà quy hoạch đô thị và tiến sĩ luật học lừng danh thế giới, ông Moshe Safdie – người sở hữu vô số những công trình kiến trúc độc đáo trên thế giới. Với thiết kế hình vầng trăng khuyết giống như một ốc đảo thu nhỏ hướng tầm nhìn ra biển, dự án The Sunrise Bay là sự kết hợp hài hòa giữa nét thanh lịch châu Á và nét hiện đại của châu Âu mang đến cho các cư dân sinh sống tại đây một cuộc sống đầy đủ tiện nghi tràn ngập không gian xanh.
Mặt bằng Tổng thể Dự án The Sunrise Bay Đà Nẵng
Dự án bao gồm khu nhà phức hợp nhà phố – biệt thự biển – thương mại – khách sạn và dịch vụ giải trí cũng như những hạng mục hạ tầng kĩ thuật khác đáp ứng tiêu chuẩn sống cao cấp và hiện đại. Các căn nhà phố The Sunrise Bay được thiết kế gồm 1 tầng trệt, 2 tầng lầu, 3 phòng ngủ và sân thượng sẽ được ngăn cách bới khu vườn nhiệt đới, công viên nội khu xen lẫn, không chỉ tạo nên một không gian sống thoáng mát, trong lành mà còn mang đến cảm giác thư giãn, nghỉ ngơi, thoải mái.
Mặt bằng Phân lô Dự án The Sunrise Bay Đà Nẵng
Ngoài ra, với thiết kế thông minh từ 180m2 trở lên bao gồm 1 tầng trệt, 3 tầng lầu và 4 phòng ngủ giúp hưởng trọn những tiện ích xanh đẳng cấp, khu biệt thự The Sunrise Bay Đà Nẵng không chỉ mang phong cách kiến trúc sang trọng mà còn tạo được sự riêng tư, yên tĩnh cho chủ nhân khu biệt thự.
+ Biệt thự đơn lập The Sunrise Bay Đà Nẵng
- Số tầng: 4
- Diện tích: 540 m2
- Nằm trực diện biển được thiết kế chăm chút nhằm đón gió và ánh sáng tối đa.
Biệt thự đơn lập The Sunrise Bay Đà Nẵng
Mặt bằng Thiết kế Biệt thự đơn lập The Sunrise Bay Đà Nẵng
+ Biệt thự song lập The Sunrise Bay Đà Nẵng
- Số tầng: 4
- Diện tích: 333 m2 – 457 m2
- Nằm trải dài trên tuyến đường đại lộ xanh được thiết kế riêng biệt nhằm đảm bảo an ninh tuyệt đối nhưng vẫn hưởng được tiện ích nội khu.
Biệt thự Song lập The Sunrise Bay Đà Nẵng
Thiết kế Biệt thự Song lập The Sunrise Bay Đà Nẵng
Thiết kế Biệt thự Song lập The Sunrise Bay Đà Nẵng
+ Nhà phố thương mại The Sunrise Bay Đà Nẵng
- Số tầng: 4 tầng + 1 tầng lững
- Diện tích: 418 m2 – 601 m2
- Nằm trên những trục đường chính của khu đô thị Sunrise Bay Đà Nẵng, nơi dòng người qua lại tấp nập, buôn bán sầm uất.
Nhà phố Thương mại Shophouse The Sunrise Bay Đà Nẵng
Mặt bằng Nhà phố Thương mại Shophouse The Sunrise Bay Đà Nẵng
Mặt bằng Nhà phố Thương mại Shophouse The Sunrise Bay Đà Nẵng
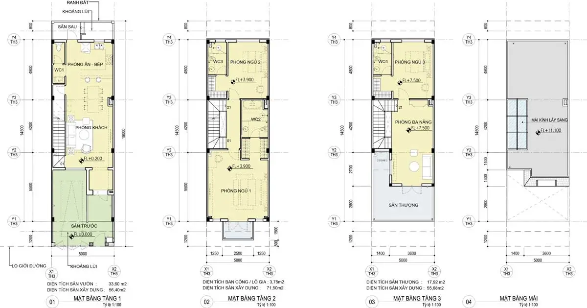
+ Nhà phố liền kề The Sunrise Bay Đà Nẵng
- Số tầng: 3 và 4
- Diện tích: 211 m2 – 410 m2
- Được thiết kế tối ưu không gian sống giúp gia chủ trải nghiệm tối đa những giây phút thư giãn bên gia đình và người thân.
Nhà phố liên kế The Sunrise Bay Đà Nẵng
Mặt bằng Nhà phố liên kế The Sunrise Bay Đà Nẵng
Với ý tưởng thiết kế mang lại không gian sống và nghỉ dưỡng vô cùng hoàn hảo, gần gũi với thiên nhiên, mang tài lộc vào nhà, The Sunrise Bay sẽ là nơi đầu tư hấp dẫn và là chốn định cư lý tưởng của cư dân thượng lưu muốn lưu trú tại trung tâm miền Trung.























